Unificado Itajaí / Cordeiros

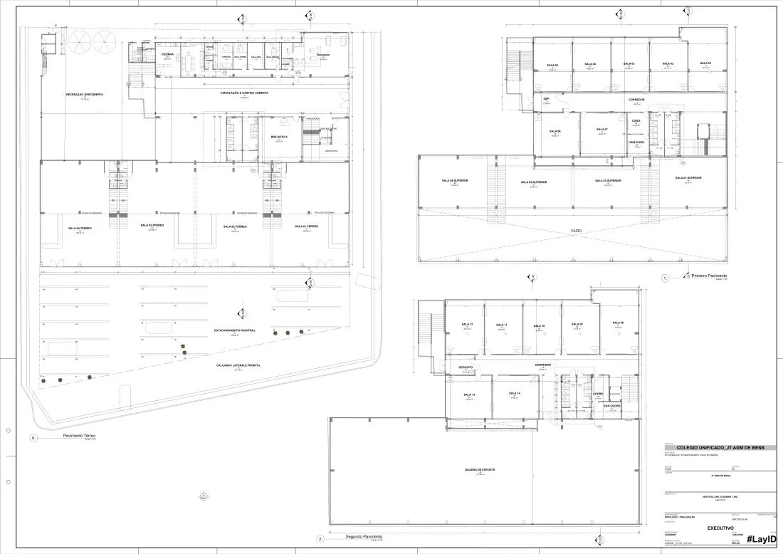
Com a inauguração prevista para 2026, a unidade do Cordeiros está localizada na Av. Dr. Reinaldo Schmithausen, 1897, em Cordeiros. Serão oferecidos pela manhã os cursos de Fundamental II e Médio e à tarde o curso de Fundamental I; haverá ainda oferta de contraturno do Fundamental I. O prédio terá 13 salas de aulas, biblioteca, laboratório de Ciências, sala de Artes, ginásio de esportes, parquinho, cantina e praça de alimentação. 

estrutura FÍSICA

SEGMENTOS disponíveis

HORÁRIOS

13h30 às 18h15

NÚMERO DE ALUNOS POR SALA

1º e 2º anos: em torno de 22 alunos.

3º ano: em torno de 25 alunos.

4º e 5º anos: em torno de 27 alunos.

Matrículas 2026Lista de Materiais
HORÁRIOS

7h30 às 11h45

NÚMERO DE ALUNOS POR SALA

6º ano: em torno de 30 alunos.

7º e 8º anos: em torno de 30 alunos.

9º ano: em torno de 30 alunos.

Lista de MateriaisMatrículas 2026
HORÁRIOS

7h30 às 12h30

NÚMERO DE ALUNOS POR SALA

Em torno de 35 alunos.

Matrículas 2026
HORÁRIOS

7h30 às 12h30 (às quartas-feiras aulas on-line à tarde, com opção gravada)

Matrículas 2026

escola DE CAMPO

Nossa Escola de Campo recebe semanalmente turmas do Fundamental I. Cedo, os pais deixam as crianças no prédio central e, em ônibus do Unificado, elas se deslocam para lá. Pela manhã têm atividades de Educação Física, Esporte, Habilidades Manuais e Práticas Vivenciais. Depois do almoço, têm aulas de Ciências Humanas e da Natureza e desenvolvem uma Atividade do Campo e saboreiam um delicioso lanche.

SAIBA MAIS
escola de campo


agende UMA VISITA

Gostaríamos muito que você viesse conhecer o Colégio Unificado. Clique no botão abaixo para agendar uma visita.

AGENDE UMA VISITA


QUAX - Sites & Sistemas

POLÍTICA DE PRIVACIDADE

Este site usa cookies para melhorar sua experiências on-line. As informações detalhadas sobre o uso de cookies deste site estão disponíveis em nossa Política de Privacidade. Ao continuar acessando o site você concorda com nossa política de uso de cookies.